Property Detail

2885 Winchester Street

Fullerton CA 92835

$1,199,000

Status: Active

Property Details

Description

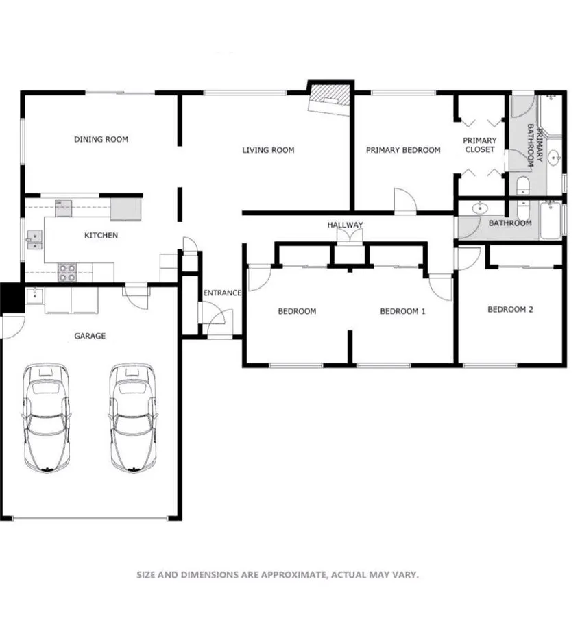
Located in the Placentia/Yorba Linda School District, we welcome you to this exceptional single-story home, a true gem offering a blend of modern efficiency and unique character. This 4-bedroom, 2-bathroom residence is designed for comfortable and sustainable living, situated on a spacious, pie-shaped lot in a highly desirable neighborhood. Close to parks, schools, and shopping. Key Features >Energy and Comfort: Experience the perfect indoor climate with energy-efficient picture windows that feature disappearing screens, allowing for a seamless connection to the outdoors. Central A/C, a whole house fan and a natural front-to-back breeze keep the home cool and comfortable year-round. A hot water circulator ensures instant hot water, while a whole house water filter and water softener provide pristine water quality. >Gourmet and Utility: The kitchen features corian countertops with integrated sink and comes with a refrigerator included. The washer and dryer are also included in the separate laundry area, which features a convenient sink with hot and cold running water. >Refined Living Spaces: The home boasts a flexible floorplan, allowing you to adapt the space to your needs. The primary suite includes a private en-suite bathroom with a walk-in shower and the hardwood floors have been just refinished, lending a timeless elegance to every room. Enjoy cozy evenings by the wood and/or gas-burning fireplace. >Outdoor Oasis: The drought-tolerant front landscaping offers a low-maintenance and beautiful curb appeal. Relax in the front courtyard with a stunning city lights view. The

Map Location

Listing provided courtesy of Debbie Kayoda of HomeSmart, Evergreen Realty. Last updated . Listing information © 2025 PACIFICSOTHEBYSFULLSANDICORCOMBINED.

Megan Root

Megan Root

CA DRE# 01351843
Inquire Now
Roya1234 Real estate 9:00 AM - 5:00 PM 9:00 AM - 5:00 PM 9:00 AM - 5:00 PM 9:00 AM - 5:00 PM 9:00 AM - 6:00 PM 9:00 AM - 5:00 PM 9:00 AM - 5:00 PM https://www.royacdn.com/unsafe/smart/Site-d4e2aea3-4679-4187-8479-90c618d39a9b/megan_root_heashot.jpg realtor # # # https://www.royacdn.com/unsafe/smart/Site-d4e2aea3-4679-4187-8479-90c618d39a9b/megan_root_heashot.jpg https://www.google.com/maps/place/MilestonePropertiesCA.com/@33.1044426,-117.2678412,15z/data=!4m5!3m4!1s0x0:0x203e6c4135692a61!8m2!3d33.1044426!4d-117.2678412 https://shoutoutsocal.com/meet-megan-root-real-estate-broker/