Property Detail

7116 Jolynn Street

Bakersfield CA 93308

$525,000

Status: Active

Property Details

Description

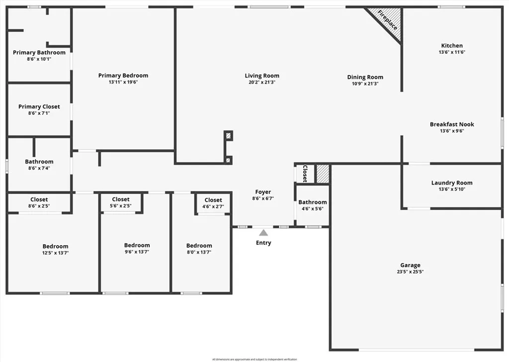
This NW home offers the perfect blend of comfort, space, and backyard retreat. With 4 bedrooms, 2.5 baths, and 2,321 sqft, the home features a spacious flowing layout highlighted by a striking brick fireplace with a raised hearth and wooden mantle perfect for cozy evenings or adding character to your living space. Just off the living room, a built-in office nook adds a convenient and dedicated space for working from home, managing schedules, or tackling homework tucked neatly away but still connected to the heart of the home. The kitchen is both thoughtfully designed and practical, offering granite countertops, double ovens, and an extended island that provides generous prep space for cooking, baking, or casual dining. Step outside to your own private retreat featuring a glistening pool and a peaceful rock waterfall its gentle cascade creating a calming ambiance ideal for unwinding or entertaining. The oversized primary suite and well-designed layout make this home a true standout.

Map Location

Listing provided courtesy of Laurie McCarty of Coldwell Banker Preferred Realtors. Last updated . Listing information © 2025 PACIFICSOTHEBYSFULLSANDICORCOMBINED.

Megan Root

Megan Root

CA DRE# 01351843
Inquire Now
Roya1234 Real estate 9:00 AM - 5:00 PM 9:00 AM - 5:00 PM 9:00 AM - 5:00 PM 9:00 AM - 5:00 PM 9:00 AM - 6:00 PM 9:00 AM - 5:00 PM 9:00 AM - 5:00 PM https://www.royacdn.com/unsafe/smart/Site-d4e2aea3-4679-4187-8479-90c618d39a9b/megan_root_heashot.jpg realtor # # # https://www.royacdn.com/unsafe/smart/Site-d4e2aea3-4679-4187-8479-90c618d39a9b/megan_root_heashot.jpg https://www.google.com/maps/place/MilestonePropertiesCA.com/@33.1044426,-117.2678412,15z/data=!4m5!3m4!1s0x0:0x203e6c4135692a61!8m2!3d33.1044426!4d-117.2678412 https://shoutoutsocal.com/meet-megan-root-real-estate-broker/