Property Detail

17741 Buckpasser

Stallion Springs CA 93561

$410,000

Status: Active

Property Details

Description

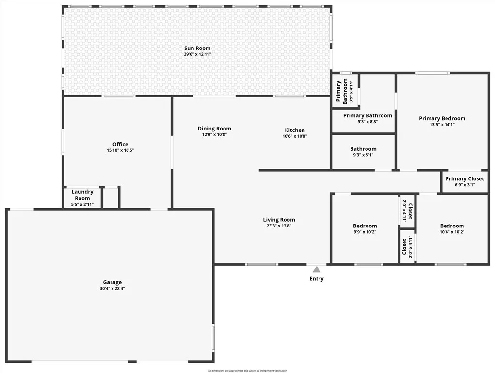
Nestled on a private and scenic cul-de-sac in the desirable Stallion Springs community, this impressive 3-bedroom, 2-bath home offers the perfect balance of privacy and convenience. Featuring 1,516 sq. ft. of living space and situated on a generous 1.63 combined acre lot (Armed Court parcel behind), this custom-built, quality home provides abundant room to roam and enjoy the great outdoors. The expansive, fully usable acreage offers ample space for RV parking and hookups, as well as a whole-house Generac generator for added peace of mind on those stormy days. The cozy sunroom provides the perfect spot to relax and unwind, while the oversized 3-car garage offers storage and workspace. Surrounded by beautiful oak trees and in close proximity to walking and hiking trails, this home offers the perfect blend of nature and accessibility. The water softener ensures quality water throughout the home. Don't miss your chance to make this private oasis your own!

Map Location

Listing provided courtesy of Lindsay Villalpondo of Miramar International Inc.. Last updated . Listing information © 2025 PACIFICSOTHEBYSFULLSANDICORCOMBINED.

Megan Root

Megan Root

CA DRE# 01351843
Inquire Now
Roya1234 Real estate 9:00 AM - 5:00 PM 9:00 AM - 5:00 PM 9:00 AM - 5:00 PM 9:00 AM - 5:00 PM 9:00 AM - 6:00 PM 9:00 AM - 5:00 PM 9:00 AM - 5:00 PM https://www.royacdn.com/unsafe/smart/Site-d4e2aea3-4679-4187-8479-90c618d39a9b/megan_root_heashot.jpg realtor # # # https://www.royacdn.com/unsafe/smart/Site-d4e2aea3-4679-4187-8479-90c618d39a9b/megan_root_heashot.jpg https://www.google.com/maps/place/MilestonePropertiesCA.com/@33.1044426,-117.2678412,15z/data=!4m5!3m4!1s0x0:0x203e6c4135692a61!8m2!3d33.1044426!4d-117.2678412 https://shoutoutsocal.com/meet-megan-root-real-estate-broker/