Property Detail

20448 Arminta

Winnetka CA 91306

$1,050,000

Status: Active

Property Details

Description

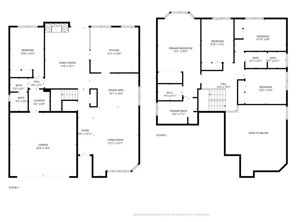
Come and see this stunning five-bedroom, three-bathroom home offering over 2,700 square feet of beautifully updated living space. Perfectly designed for comfort and functionality, this home is truly move-in ready and ideal for todays modern lifestyle. Step inside to a bright and spacious layout featuring a renovated kitchen complete with newer stainless steel Samsung appliances, new cabinetry, and elegant Quartz countertops. Two of the three bathrooms have been completely remodeled, showcasing modern fixtures, stylish vanities, and matching Quartz finishes for a cohesive designer look. The thoughtfully designed floor plan includes one bedroom and a full bath downstairsperfect for guests, a home office, or private workspace. The spacious living room opens to a formal dining area, while the cozy family roomcomplete with a beautiful fireplaceflows seamlessly into the sunny kitchen with a built in Island. Upstairs, the oversized primary suite features a walk-in closet and a luxurious private bath with a separate tub and shower. As if that weren't enough, energy efficiency and comfort abound with newer dual-paned windows with custom shutters, a 2-year-old HVAC system, and a 3-year-old water heater. The home also features an upgraded electrical panel, a newer roof for added peace of mind. Thousands have been spent to prepare this home for its new owners. With its blend of modern upgrades, generous space, and a warm, inviting feel, this property truly stands out as a must-see.

Map Location

Listing provided courtesy of Brandie Jones of Keller Williams SELA. Last updated . Listing information © 2025 PACIFICSOTHEBYSFULLSANDICORCOMBINED.

Megan Root

Megan Root

CA DRE# 01351843
Inquire Now
Roya1234 Real estate 9:00 AM - 5:00 PM 9:00 AM - 5:00 PM 9:00 AM - 5:00 PM 9:00 AM - 5:00 PM 9:00 AM - 6:00 PM 9:00 AM - 5:00 PM 9:00 AM - 5:00 PM https://www.royacdn.com/unsafe/smart/Site-d4e2aea3-4679-4187-8479-90c618d39a9b/megan_root_heashot.jpg realtor # # # https://www.royacdn.com/unsafe/smart/Site-d4e2aea3-4679-4187-8479-90c618d39a9b/megan_root_heashot.jpg https://www.google.com/maps/place/MilestonePropertiesCA.com/@33.1044426,-117.2678412,15z/data=!4m5!3m4!1s0x0:0x203e6c4135692a61!8m2!3d33.1044426!4d-117.2678412 https://shoutoutsocal.com/meet-megan-root-real-estate-broker/