Property Detail

1736 Oakridge

West Covina CA 91792

$829,000

Status: Active

Property Details

Description

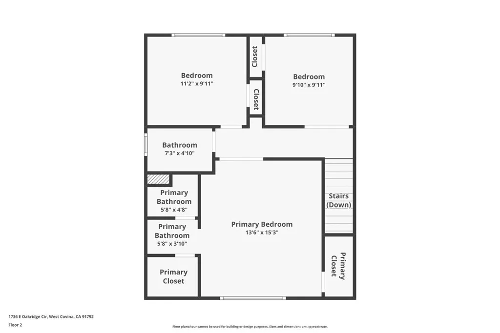
Stunningly Renovated Home at 1736 E Oakridge Circle, West Covina Move-In Ready Gem! This beautifully updated residence at 1736 E Oakridge Circle boasts brand-new everything from the roof to the luxury flooring, gourmet kitchen, and bathrooms ensuring modern comfort and peace of mind for years to come. With thoughtful design and high-end finishes throughout, this property is perfect for families, professionals, or anyone seeking a turnkey lifestyle. Key Highlights: Brand-New Roof: Installed with top-quality materials for ultimate durability and energy efficiency no worries about leaks or repairs! Gorgeous New Floors: Elegant, durable luxury vinyl plank or hardwood-style flooring flows seamlessly throughout, adding warmth and sophistication to every room. Chef's Dream Kitchen: Completely remodeled with brand-new cabinets, quartz countertops and custom backsplash ideal for cooking enthusiasts and entertaining guests. Luxurious Bathrooms: Fully updated with modern fixtures, tiled showers, vanities, and premium finishes for a serene, hotel-like retreat. Easy 4-Bedroom Conversion: Currently configured as a spacious 3-bedroom layout, but with minimal effort, it can be effortlessly transformed into a 4-bedroom home perfect for growing families or home offices! Steps from Nature & Recreation: Extremely close to parks, scenic trails, and green spaces enjoy morning jogs, family picnics, or evening walks without ever getting in the car! Convenient Shopping & Amenities: Just minutes from major shopping plazas, grocery stores, restaurants, and entertainment everything you need is

Map Location

Listing provided courtesy of Onur Aytac of Pacific Sterling Realty. Last updated . Listing information © 2025 PACIFICSOTHEBYSFULLSANDICORCOMBINED.

Megan Root

Megan Root

CA DRE# 01351843
Inquire Now
Roya1234 Real estate 9:00 AM - 5:00 PM 9:00 AM - 5:00 PM 9:00 AM - 5:00 PM 9:00 AM - 5:00 PM 9:00 AM - 6:00 PM 9:00 AM - 5:00 PM 9:00 AM - 5:00 PM https://www.royacdn.com/unsafe/smart/Site-d4e2aea3-4679-4187-8479-90c618d39a9b/megan_root_heashot.jpg realtor # # # https://www.royacdn.com/unsafe/smart/Site-d4e2aea3-4679-4187-8479-90c618d39a9b/megan_root_heashot.jpg https://www.google.com/maps/place/MilestonePropertiesCA.com/@33.1044426,-117.2678412,15z/data=!4m5!3m4!1s0x0:0x203e6c4135692a61!8m2!3d33.1044426!4d-117.2678412 https://shoutoutsocal.com/meet-megan-root-real-estate-broker/