Property Detail

528 Parkdale

San Bernardino CA 92404

$675,000

Status: Active

Property Details

Description

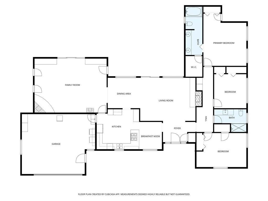
You arent drawn to this home simply because it sits across from the prestigious Arrowhead Country Club Golf Course. Youre drawn to it because it feels like calma place where mornings arrive slowly, light pours across the fairways, and home finally feels like a breath youve been waiting to release. This immaculate single-story home is the perfect blend of classic charm with modern convenience. Inside, stunning " hardwood floors carry you through the main living areas, connecting a welcoming floor plan designed for effortless gatherings. The kitchen is both warm and refined, featuring custom soft-close cabinetry, granite countertops, stainless steel appliances, a stacked double oven, a 36" gas cooktop with downdraft vent, and generous storage. Its the kind of kitchen where moments happenholiday meals, morning coffee, late-night conversations. The primary suite is its own retreat, complete with three closets and a private bath offering dual sinks and a jacuzzi tub. Two additional guest bedrooms offer spacious, comfortable accommodations. A large bonus room with its own bathroom creates even more possibilityan ideal haven for multi-generational living, a private guest suite, or a potential ADU conversion (buyer to verify). Every improvement has been purposeful: two hot water heaters, newer HVAC system, upgraded electrical panel, 220-volt outlet in the garage, and a paid-off water softening systemcomfort woven seamlessly into everyday living. Dual-pane windows and sliding glass doors allow the light in while keeping the world quiet. Step into the backyard and discover a manicure

Map Location

Listing provided courtesy of Kristin Devine-Gutierrez of EXP REALTY OF CALIFORNIA INC. Last updated . Listing information © 2025 PACIFICSOTHEBYSFULLSANDICORCOMBINED.

Megan Root

Megan Root

CA DRE# 01351843
Inquire Now
Roya1234 Real estate 9:00 AM - 5:00 PM 9:00 AM - 5:00 PM 9:00 AM - 5:00 PM 9:00 AM - 5:00 PM 9:00 AM - 6:00 PM 9:00 AM - 5:00 PM 9:00 AM - 5:00 PM https://www.royacdn.com/unsafe/smart/Site-d4e2aea3-4679-4187-8479-90c618d39a9b/megan_root_heashot.jpg realtor # # # https://www.royacdn.com/unsafe/smart/Site-d4e2aea3-4679-4187-8479-90c618d39a9b/megan_root_heashot.jpg https://www.google.com/maps/place/MilestonePropertiesCA.com/@33.1044426,-117.2678412,15z/data=!4m5!3m4!1s0x0:0x203e6c4135692a61!8m2!3d33.1044426!4d-117.2678412 https://shoutoutsocal.com/meet-megan-root-real-estate-broker/