Property Detail

13 W Dana

Nipomo CA 93444

$649,000

Status: Active

Property Details

Description

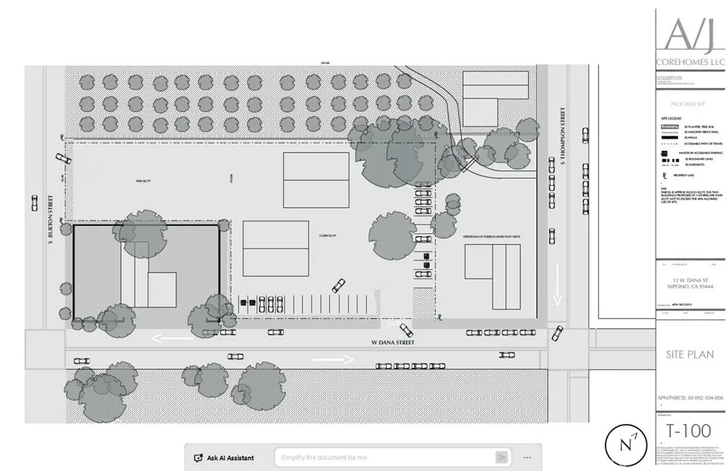
Heres a great opportunity to own almost one-half acre zoned commercial retail in Old Town Nipomo, located in the East Tefft corridor development district. If youre looking to buy in the path of progress, this parcel deserves a close look. Youll appreciate the flexibility here: Hold as a land bank in a growing community Move toward entitlements and sell Or build it out to its highest and best use for future rental income Preliminary conversations with the county suggest there may be potential for at least ten residential units with a conditional use permit along with commercial space and possible building heights up to forty-five feet. All information in this listing must be verified with San Luis Obispo County by the buyer or buyers agent. All utilities are available at the street which making development user-friendly. The L-shaped parcel wraps around the home on the corner, and that home is not part of the sale. The setting is tranquil yet convenient, positioned between West Dana Street and South Burton Street across from La Cazuelas restaurant. Nipomo continues to attract residents and investors for its small-town charm, gentle climate and central location. Enjoy easy access to Highway 101, local dining, golf and wineries, and a welcoming community with steady growth. Its a place where families put down roots and long-term investment makes sense. Why wait? Start your next investment chapter today. Conceptual rendering ONLY included in the photos provided to illustrate potential mixed-use development allowed under current zoning. Buyer to verify all information, permit

Map Location

Listing provided courtesy of Michael Puhek of RE/MAX Success. Last updated . Listing information © 2025 PACIFICSOTHEBYSFULLSANDICORCOMBINED.

Megan Root

Megan Root

CA DRE# 01351843
Inquire Now
Roya1234 Real estate 9:00 AM - 5:00 PM 9:00 AM - 5:00 PM 9:00 AM - 5:00 PM 9:00 AM - 5:00 PM 9:00 AM - 6:00 PM 9:00 AM - 5:00 PM 9:00 AM - 5:00 PM https://www.royacdn.com/unsafe/smart/Site-d4e2aea3-4679-4187-8479-90c618d39a9b/megan_root_heashot.jpg realtor # # # https://www.royacdn.com/unsafe/smart/Site-d4e2aea3-4679-4187-8479-90c618d39a9b/megan_root_heashot.jpg https://www.google.com/maps/place/MilestonePropertiesCA.com/@33.1044426,-117.2678412,15z/data=!4m5!3m4!1s0x0:0x203e6c4135692a61!8m2!3d33.1044426!4d-117.2678412 https://shoutoutsocal.com/meet-megan-root-real-estate-broker/