Property Detail

26219 Larkhaven Place

Newhall CA 91321

$749,900

Status: Active

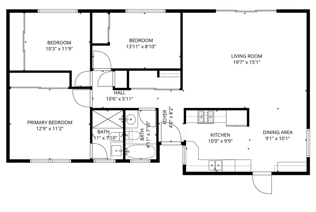
Property Details

Description

True pride of homeownership shows throughout this single story pool home. Located at the end of the cul-de-sac, this single family home has been remodeled with improved mechanics and is energy efficient. R2 Zoning you can potentially build an ADU (buyer to verify). NO HOA, and NO MELLO ROOS tax bonds. Recent home improvements include (but not limited to): New main electrical panel (completion date approx. December 2025). November 2025: installed new recessed lights and ceiling fans. April 2025: installed a new Katchakid pool safety net. May 2024: installed a new 40 gallon water heater includes a 6 year warranty for parts through the manufacture Bradford White. May 2023. Installed new luxury vinyl planks throughout the house and included underlayment padding. August 2023: installed a new variable speed pool pump and pool filter. March and April of 2021: installed new dimensional fiber glass composition shingles class A roof. Installed 12 solar panels, fully purchased and owned with no lease payments. The estimated size is 4.08 kW DC with an estimated system lifetime of 30 years, a 20 year system maintenance and repairs agreement, and a 10 year roof warranty against leaks (buyer to verify solar agreement). May 2020: re-plaster the swimming pool to a Pebble Finish with a 15 year warranty and an LED 50watt pool light. September 2015: installed new dual pane glass slider door to the exterior. October 2013: installed new dual pane vinyl windows. Backyard has a gorgeous serene garden, with matured trees surrounding the yard it creates natural privacy all around. Welcome Home to th

Map Location

Listing provided courtesy of Jose Alonso of RE/MAX Gateway. Last updated . Listing information © 2025 PACIFICSOTHEBYSFULLSANDICORCOMBINED.

Megan Root

Megan Root

CA DRE# 01351843
Inquire Now
Roya1234 Real estate 9:00 AM - 5:00 PM 9:00 AM - 5:00 PM 9:00 AM - 5:00 PM 9:00 AM - 5:00 PM 9:00 AM - 6:00 PM 9:00 AM - 5:00 PM 9:00 AM - 5:00 PM https://www.royacdn.com/unsafe/smart/Site-d4e2aea3-4679-4187-8479-90c618d39a9b/megan_root_heashot.jpg realtor # # # https://www.royacdn.com/unsafe/smart/Site-d4e2aea3-4679-4187-8479-90c618d39a9b/megan_root_heashot.jpg https://www.google.com/maps/place/MilestonePropertiesCA.com/@33.1044426,-117.2678412,15z/data=!4m5!3m4!1s0x0:0x203e6c4135692a61!8m2!3d33.1044426!4d-117.2678412 https://shoutoutsocal.com/meet-megan-root-real-estate-broker/