Property Detail

5934 Mission

Jurupa Valley CA 92509

$1,890,000

Status: Active

Property Details

Description

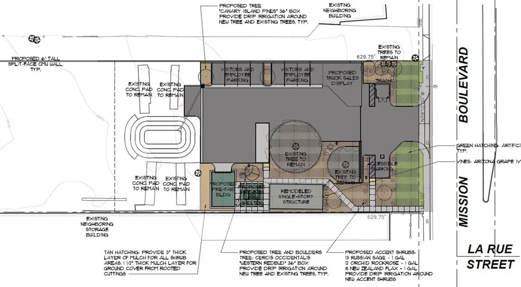
Exceptional commercial development opportunity in rapidly growing Jurupa Valley! Approximately 2.0 acres of vacant commercial land with valuable C-1/C-P = Neighborhood / General Commercial, allowing a wide range of use. Ideal for retail, service, office, and light commercial uses serving local residents and pass-through traffic. This sale includes an APPROVED Tenant Improvement plan for a COMMERCIAL (HEAVY DUTY) TRUCK SALES & REPAIR FACILITY!! Saving an owner or investor significant time, cost, and entitlement uncertainty. Ideal for commercial owner-user, investor, or developer seeking a ready-to-go site with strong automotive-related potential. Property offers excellent frontage exposure along Mission Blvd with high traffic counts, strong visibility, and easy access to major Inland Empire transportation corridors. Surrounded by established industrial, commercial, and automotive businesses. A rare opportunity to purchase commercial land with approved plans already in place. Buyer to verify all zoning and land use details with the City of Jurupa Valley.

Map Location

Listing provided courtesy of Kevin Lee of Coldwell Banker Envision. Last updated . Listing information © 2025 PACIFICSOTHEBYSFULLSANDICORCOMBINED.

Megan Root

Megan Root

CA DRE# 01351843
Inquire Now
Roya1234 Real estate 9:00 AM - 5:00 PM 9:00 AM - 5:00 PM 9:00 AM - 5:00 PM 9:00 AM - 5:00 PM 9:00 AM - 6:00 PM 9:00 AM - 5:00 PM 9:00 AM - 5:00 PM https://www.royacdn.com/unsafe/smart/Site-d4e2aea3-4679-4187-8479-90c618d39a9b/megan_root_heashot.jpg realtor # # # https://www.royacdn.com/unsafe/smart/Site-d4e2aea3-4679-4187-8479-90c618d39a9b/megan_root_heashot.jpg https://www.google.com/maps/place/MilestonePropertiesCA.com/@33.1044426,-117.2678412,15z/data=!4m5!3m4!1s0x0:0x203e6c4135692a61!8m2!3d33.1044426!4d-117.2678412 https://shoutoutsocal.com/meet-megan-root-real-estate-broker/