Property Detail

7067 Camino Revueltos #312

San Diego CA 92111

$699,000

Status: Active

Property Details

Description

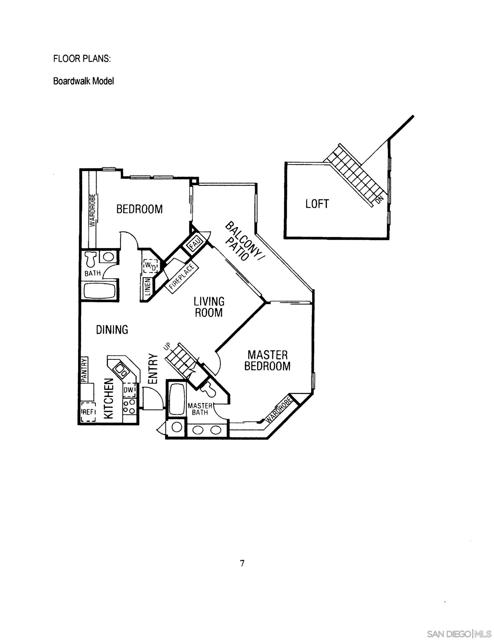
This stunning top-floor, end-unit condo offers the perfect blend of comfort, style, and convenience. With two spacious bedrooms, two full bathrooms, and a generous loft, the open layout is enhanced by soaring vaulted ceilings that flood the home with natural light. Thoughtfully updated throughout, the interior features an updated kitchen with stainless steel appliances and extended granite countertop, renovated bathrooms, energy-efficient dual-pane windows, and luxury vinyl plank flooring with cork backing. The home also includes a newer furnace (installed in 2023) and an upgraded water heater (2017). Step outside to your private balcony—an ideal spot for morning coffee or evening relaxation. This home also includes a two-car detached tandem garage for added convenience. Located in the sought-after City Scene community, residents enjoy access to a sparkling saltwater pool, a fully equipped fitness center, and BBQ areas for outdoor gatherings. With close proximity to USD, SDSU, Fashion Valley Mall, and major freeways, this beautifully upgraded condo offers both serenity and accessibility. Don’t miss your opportunity to own this light-filled top-floor retreat!

Map Location

Listing provided courtesy of Ana Maria Goodemote of Coldwell Banker Realty. Last updated 2025-10-07 08:18:43.000000. Listing information © 2025 CRMLS.

Megan Root

Megan Root

CA DRE# 01351843
Inquire Now
Roya1234 Real estate 9:00 AM - 5:00 PM 9:00 AM - 5:00 PM 9:00 AM - 5:00 PM 9:00 AM - 5:00 PM 9:00 AM - 6:00 PM 9:00 AM - 5:00 PM 9:00 AM - 5:00 PM https://www.royacdn.com/unsafe/smart/Site-d4e2aea3-4679-4187-8479-90c618d39a9b/megan_root_heashot.jpg realtor # # # https://www.royacdn.com/unsafe/smart/Site-d4e2aea3-4679-4187-8479-90c618d39a9b/megan_root_heashot.jpg https://www.google.com/maps/place/MilestonePropertiesCA.com/@33.1044426,-117.2678412,15z/data=!4m5!3m4!1s0x0:0x203e6c4135692a61!8m2!3d33.1044426!4d-117.2678412 https://shoutoutsocal.com/meet-megan-root-real-estate-broker/