Property Detail

2400 74th

Los Angeles CA 90043

$1,120,000

Status: Active

Property Details

Description

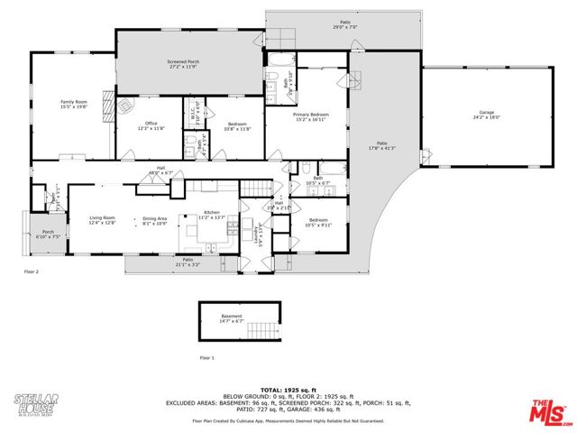
Motivated Seller - Price Reduction! Beautifully renovated home, offering 3 spacious bedrooms plus an office/guest room, 2.5 bathrooms, and a versatile bonus/rec room. The property also features a finished 3-car garage that could be converted to an ADU for additional space or income with direct access to the backyard and house. Stunning solid wood front door entry with a bright, airy living room with fireplace and bookcases. The oversized bonus room is flexible enough to serve as living quarters, a gym, or an office/studio with private door to the gated side yard and backyard/garage. The powder room is perfect for guests, complimented by two hallway closets and a partial basement ideal for storage. Two bedrooms, alongside an office/guest room complete with a fireplace, share a well-appointed bathroom featuring dual sinks, a tub, and a shower at the end of the hallway. The serene primary bedroom suite offers an ensuite bathroom and direct access to the backyard, patio, and garage. The light-filled kitchen, boasting stainless steel appliances, quartz countertops, and a breakfast bar, seamlessly flows into the dining and family room areas, creating an inviting space perfect for entertaining. A spacious laundry room equipped with a washer, dryer, and ample storage has convenient access to the backyard, garage, and side yard. Outside, discover a secluded backyard designed for entertaining, whether it's al fresco dining, weekend soirees, or unwinding under the stars. Nestled within the desirable Morningside Park area, this home is minutes away from SoFi Stadium, LAX, Culver City, USC, Downtown LA, and the South Bay. Beyond its tasteful interiors, this home has been thoughtfully redesigned to epitomize Southern California living at its finest.

Map Location

Listing provided courtesy of Pamela Lumpkin of Compass. Last updated 2025-12-23 09:08:48.000000. Listing information © 2025 CRMLS.

Megan Root

Megan Root

CA DRE# 01351843
Inquire Now
Roya1234 Real estate 9:00 AM - 5:00 PM 9:00 AM - 5:00 PM 9:00 AM - 5:00 PM 9:00 AM - 5:00 PM 9:00 AM - 6:00 PM 9:00 AM - 5:00 PM 9:00 AM - 5:00 PM https://www.royacdn.com/unsafe/smart/Site-d4e2aea3-4679-4187-8479-90c618d39a9b/megan_root_heashot.jpg realtor # # # https://www.royacdn.com/unsafe/smart/Site-d4e2aea3-4679-4187-8479-90c618d39a9b/megan_root_heashot.jpg https://www.google.com/maps/place/MilestonePropertiesCA.com/@33.1044426,-117.2678412,15z/data=!4m5!3m4!1s0x0:0x203e6c4135692a61!8m2!3d33.1044426!4d-117.2678412 https://shoutoutsocal.com/meet-megan-root-real-estate-broker/