Property Detail

33 Edgewood

Santa Cruz CA 95060

$1,450,000

Status: Active

Property Details

Description

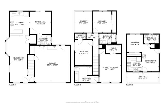
Flexible Living Options with two legal units in the heart of Santa Cruz, convenient to everything on an ideal commute location, yet tucked away on a quiet back street. The well-maintained main residence offers 1,510 sq ft of living space with 3 spacious bedrooms and 2.5 bathrooms.The primary suite includes a spacious bath with a double sink vanity and a walk-in shower. The large backyard features mature landscaping in multiple areas including a producing lemon tree, and offers exceptional privacy along with extra space that is ideal for gardening or outdoor projects, plus an oversize 2 car shop/garage. The legal second residence currently rented for $1225 per month offers 399 SF of open living space with full kitchen and bath its own 1 car garage, and there is additional off-street parking in the driveway for 3 more vehicles. There's even a detached bonus office/art studio that hasn't been used for years and is ready for renovation and/or conversion to a third unit. Enjoy the best of both worlds, with room to grow!

Map Location

Listing provided courtesy of Datta Khalsa of Main Street Realtors. Last updated 2025-10-03 08:17:27.000000. Listing information © 2025 CRMLS.

Megan Root

Megan Root

CA DRE# 01351843
Inquire Now
Roya1234 Real estate 9:00 AM - 5:00 PM 9:00 AM - 5:00 PM 9:00 AM - 5:00 PM 9:00 AM - 5:00 PM 9:00 AM - 6:00 PM 9:00 AM - 5:00 PM 9:00 AM - 5:00 PM https://www.royacdn.com/unsafe/smart/Site-d4e2aea3-4679-4187-8479-90c618d39a9b/megan_root_heashot.jpg realtor # # # https://www.royacdn.com/unsafe/smart/Site-d4e2aea3-4679-4187-8479-90c618d39a9b/megan_root_heashot.jpg https://www.google.com/maps/place/MilestonePropertiesCA.com/@33.1044426,-117.2678412,15z/data=!4m5!3m4!1s0x0:0x203e6c4135692a61!8m2!3d33.1044426!4d-117.2678412 https://shoutoutsocal.com/meet-megan-root-real-estate-broker/