Property Detail

12417 Burton

North Hollywood CA 91605

$975,000

Status: Active

Property Details

Description

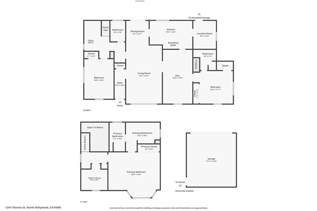
Welcome to this delightful mid-century residence, original family owned, proudly offered for the first time on the market. Located in a desirable North Hollywood neighborhood and surrounded by a welcoming community experiencing ongoing revitalization, this entertainer’s dream blends timeless character with thoughtful modern upgrades. Boasting three spacious bedrooms, three bathrooms, a den, and a sparkling swimming pool, this home is designed for comfort, function, and indoor-outdoor living. A inviting front porch sets the tone as you enter through the entry foyer into the home. The sun-drenched living room features expansive windows that fill the space with natural light—ideal for relaxing evenings or after-dinner conversation. The adjacent den, complete with a handsome wood-burning fireplace, offers the perfect cozy space to unwind with a book or enjoy movie night. At the heart of the home is a spacious cook’s kitchen featuring tile countertops, ample cabinetry, and a sunny breakfast nook. Equipped with an electric double oven/range, dishwasher, microwave, and refrigerator, this kitchen is ready for everyday meals or entertaining. A separate dining room offers the perfect setting for intimate family dinners or festive gatherings. Nearby, a laundry room provides abundant storage and backyard access for added convenience. Upstairs, the spacious primary suite is a serene retreat, complete with a walk-in closet, secondary mirrored closet, and en suite bathroom featuring a dual-sink vanity, soaking tub, tiled shower, and built-in storage. Downstairs, a secondary primary bedroom also offers an en suite bathroom and walk-in closet—perfect for guests or multi-generational living. The third bedroom is generously sized with ample closet space and easy access to a large hall bathroom with a shower-over-tub combo. A home office nook offers a great space for remote work, study, or a home gym setup. Step outside to your private backyard retreat, featuring a sparkling pool, covered patio, and lush landscaping. The north-facing backyard enjoys morning sun and afternoon shade—ideal for al fresco dining, lounging by the pool, or weekend entertaining. Conveniently located near great shopping, schools, dining, entertainment, and major freeways and transit, this North Hollywood treasure is ready for its next chapter. Whether you're hosting family gatherings, relaxing poolside, or enjoying the community vibe, this home offers the perfect blend of comfort, charm, and location.

Map Location

Listing provided courtesy of Michael Galieote of Pinnacle Estate Properties, Inc.. Last updated 2025-10-07 08:18:43.000000. Listing information © 2025 CRMLS.

Megan Root

Megan Root

CA DRE# 01351843
Inquire Now
Roya1234 Real estate 9:00 AM - 5:00 PM 9:00 AM - 5:00 PM 9:00 AM - 5:00 PM 9:00 AM - 5:00 PM 9:00 AM - 6:00 PM 9:00 AM - 5:00 PM 9:00 AM - 5:00 PM https://www.royacdn.com/unsafe/smart/Site-d4e2aea3-4679-4187-8479-90c618d39a9b/megan_root_heashot.jpg realtor # # # https://www.royacdn.com/unsafe/smart/Site-d4e2aea3-4679-4187-8479-90c618d39a9b/megan_root_heashot.jpg https://www.google.com/maps/place/MilestonePropertiesCA.com/@33.1044426,-117.2678412,15z/data=!4m5!3m4!1s0x0:0x203e6c4135692a61!8m2!3d33.1044426!4d-117.2678412 https://shoutoutsocal.com/meet-megan-root-real-estate-broker/