Property Detail

2218 Glacier

Santa Maria CA 93455

$1,550,000

Status: Active

Property Details

Description

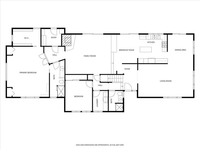
This stunning five bedroom home located in Lake Marie Estates offers the perfect blend of elegance and comfort. Featuring 3,100 sq ft, the main floor features a spacious owner suite complete with custom designed walk in closet and adjoining bathroom complete with beautiful amenities adjacent to a guest bedroom and full bath—ideal for multi-generational living or hosting visitors. The stunning gourmet kitchen offers a large island, DC double oven, KitchenAid gas stove & refrigerator. There are freshly refinished floors, dual pane windows, a large formal living room, and a formal dining room --- setting the stage for both entertaining and everyday enjoyment. There are two tankless water heaters in the home and separate heating for the downstairs owner suite. Upstairs, you'll find another private owner's suite, plus two additional guest bedrooms. Step outside to your private backyard oasis: a sparkling in-ground pool, covered outdoor kitchen with gas BBQ, ample counter space for serving and built-in amenities, garden pathways, beautiful decking, and serene spaces to unwind or entertain. There are several fruit trees including avocado and macadamia nut. There are newer Sunbrella awnings on the deck that provide shade when needed with a wood garden shed and two portable sheds for storage. Additional features include a detached three-car garage with interlocking garage floor tiles, RV parking area, circular drive, and two SunRun solar with two units will be paid off at closing. Optional opportunities include club membership to the Lake Marie Club, too. A true retreat, this property combines thoughtful design with resort-style living.

Map Location

Listing provided courtesy of Wendy Teixeira of Better Homes and Gardens Real Estate Haven Properties. Last updated 2025-10-07 08:18:43.000000. Listing information © 2025 CRMLS.

Megan Root

Megan Root

CA DRE# 01351843
Inquire Now
Roya1234 Real estate 9:00 AM - 5:00 PM 9:00 AM - 5:00 PM 9:00 AM - 5:00 PM 9:00 AM - 5:00 PM 9:00 AM - 6:00 PM 9:00 AM - 5:00 PM 9:00 AM - 5:00 PM https://www.royacdn.com/unsafe/smart/Site-d4e2aea3-4679-4187-8479-90c618d39a9b/megan_root_heashot.jpg realtor # # # https://www.royacdn.com/unsafe/smart/Site-d4e2aea3-4679-4187-8479-90c618d39a9b/megan_root_heashot.jpg https://www.google.com/maps/place/MilestonePropertiesCA.com/@33.1044426,-117.2678412,15z/data=!4m5!3m4!1s0x0:0x203e6c4135692a61!8m2!3d33.1044426!4d-117.2678412 https://shoutoutsocal.com/meet-megan-root-real-estate-broker/