Property Detail

8465 Gabrielino

Rancho Cucamonga CA 91730

$631,490

Status: Active

Property Details

Description

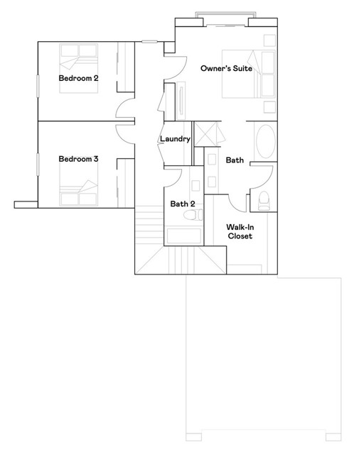
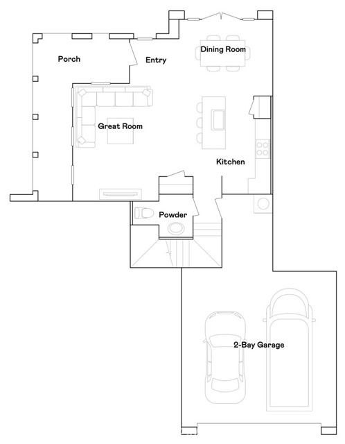
NEW CONSTRUCTION! Includes Upgraded Flooring! This new two-story home is host to a spacious and flexible open-concept floorplan on the first level, blending the kitchen, living and dining areas for seamless everyday transitions and multitasking. All three bedrooms are located on the second floor for optimal privacy, including the luxurious owner’s suite with a full bathroom and walk-in closet. Green Leaf is a new series of condos for sale, now selling in the gated Sycamore Heights masterplan in Rancho Cucamonga, CA. Homeowners will enjoy access to all planned onsite amenities within the masterplan, including a rec center, dog park and tot lot. Victoria Gardens and Haven City Market are just five miles away, offering an array of shopping, dining and entertainment options. Effortlessly plan trips and vacations with convenient proximity to the Ontario Airport, and enjoy simple access to nearby entertainment destinations like Top Golf, just five minutes away.

Map Location

Listing provided courtesy of Todd Myatt of Century 21 Masters. Last updated 2025-10-05 08:22:22.000000. Listing information © 2025 CRMLS.

Megan Root

Megan Root

CA DRE# 01351843
Inquire Now
Roya1234 Real estate 9:00 AM - 5:00 PM 9:00 AM - 5:00 PM 9:00 AM - 5:00 PM 9:00 AM - 5:00 PM 9:00 AM - 6:00 PM 9:00 AM - 5:00 PM 9:00 AM - 5:00 PM https://www.royacdn.com/unsafe/smart/Site-d4e2aea3-4679-4187-8479-90c618d39a9b/megan_root_heashot.jpg realtor # # # https://www.royacdn.com/unsafe/smart/Site-d4e2aea3-4679-4187-8479-90c618d39a9b/megan_root_heashot.jpg https://www.google.com/maps/place/MilestonePropertiesCA.com/@33.1044426,-117.2678412,15z/data=!4m5!3m4!1s0x0:0x203e6c4135692a61!8m2!3d33.1044426!4d-117.2678412 https://shoutoutsocal.com/meet-megan-root-real-estate-broker/