Property Detail

26441 Ranch Creek

Canyon Country CA 91387

$3,099,000

Status: Active

Property Details

Description

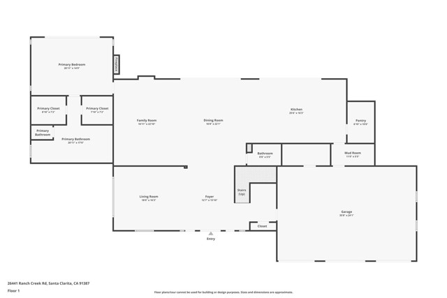
Sand Canyon Luxury Living at its finest! Introducing the newly constructed gated community of Oak Creek Ranch built in 2024. Surrounded by acres of open space, nature, and privacy; this modern ranch style Estate was built for those wanting it all, a home and a lifestyle! No dime spared here, all finishes are top-end quality material from the exterior to the interior. Featuring 2 Primary Suites, one downstairs and one upstairs, both suites include sliders to the pool or balcony. Each Primary suite offers walk-in closets, dual vanities, a soaking tub, and a walk-in shower. Your lifestyle just got an upgrade; you’ll love entertaining your visitors and enjoy everyone’s presence with the open concept Kitchen to Dining to Living to the California covered patio, and 18 surround sound speakers with a Sonos amp and bass brings-out the livewire energy! The backyard leads you into the Salt water swimming pool and Spa, a built-in-bbq, sit and lounge with a glass and stare into the backyard Sunset views, stay until the sparkling stars illuminate your evening and dance the night away under the moonlight. The 3 car garage side-by-side, was built for those car enthusiast, side mounted motors, auto-lock deadbolt doors, blacked-out privacy glass, epoxy flooring, 220V, 400AMPS, and a storage closet. Taking off your shoes before entering your home is a breeze with a mud room adjacent to the garage, and unloading those big box groceries is convenient with the walk-in pantry adjacent to the mud room. The natural oak engineered hardwood floors continue through the upstairs leading into the Loft and the remaining 3 bedrooms. Only 2 types of flooring, hardwood and tiles, no carpet. Upstairs has a corner to corner wrap-around balcony starting from the Primary Suite, to the Loft, to the guest bedroom. All 3 rooms have glass sliders to the balcony, step out and enjoy iconic views of Sand Canyon’s nature for miles and miles, stick around a little and you might catch a family of deer’s. The 2.13 acres of land provides endless opportunities to expand, a sports court, RV parking, boat or 5th wheel parking, entertainment pool house, additional living quarters with a guest house or an ADU, follow what your heart desires. The owned 24 solar panels provide energy efficiency all year around, additionally a GeneRac back-up generator is connected and ready for emergency usage. The HVAC system includes two 5 ton condensers, one up and one downstairs. Stop scrolling; you’ve made it home.

Map Location

Listing provided courtesy of Jose Alonso of RE/MAX Gateway. Last updated 2025-10-07 08:20:28.000000. Listing information © 2025 CRMLS.

Megan Root

Megan Root

CA DRE# 01351843
Inquire Now
Roya1234 Real estate 9:00 AM - 5:00 PM 9:00 AM - 5:00 PM 9:00 AM - 5:00 PM 9:00 AM - 5:00 PM 9:00 AM - 6:00 PM 9:00 AM - 5:00 PM 9:00 AM - 5:00 PM https://www.royacdn.com/unsafe/smart/Site-d4e2aea3-4679-4187-8479-90c618d39a9b/megan_root_heashot.jpg realtor # # # https://www.royacdn.com/unsafe/smart/Site-d4e2aea3-4679-4187-8479-90c618d39a9b/megan_root_heashot.jpg https://www.google.com/maps/place/MilestonePropertiesCA.com/@33.1044426,-117.2678412,15z/data=!4m5!3m4!1s0x0:0x203e6c4135692a61!8m2!3d33.1044426!4d-117.2678412 https://shoutoutsocal.com/meet-megan-root-real-estate-broker/