Property Detail

287 Sunrise Terrace Drive

Arroyo Grande CA 93420

$485,000

Status: Active

Property Details

Description

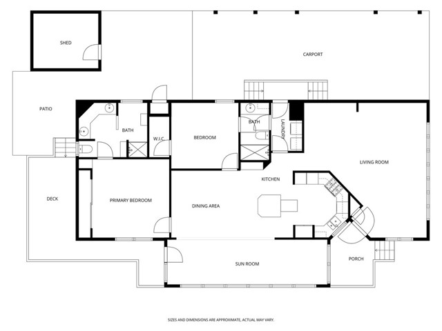
Roomy 2 bedroom, 2 bath home with a living room, dining area, family room, enclosed sunroom and a lovely setting with a forest view in the back yard. There is a spacious primary bedroom and ensuite bath and a sizeable guest bedroom with an attached bath. The family room, kitchen and enclosed sunroom are open to each other as a great room concept. There is a sizable deck off the rear of the home that takes full advantage of the beautiful forest views off the back. The carport can accommodate two cars and there is a very cute, clean shed with a concrete floor. This home has so much potential with some updating or remodeling. The exterior has been very well cared for and there is a very nice yard/garden space as well. Sunrise Terrace Mobile Home Park is a senior park and there is not land lease. There is an HOA fee of $290 a month. This park has many amenities that include, a pool, hot tub, spa, tennis and pickle ball courts, BBQ area, fire pit, bocce ball court, billiards, dog park, community room and a small golf course. Information is not verified or guaranteed.

Map Location

Listing provided courtesy of Monica King of BHGRE HAVEN PROPERTIES. Last updated 2025-11-22 09:16:25.000000. Listing information © 2025 CRMLS.

Megan Root

Megan Root

CA DRE# 01351843
Inquire Now
Roya1234 Real estate 9:00 AM - 5:00 PM 9:00 AM - 5:00 PM 9:00 AM - 5:00 PM 9:00 AM - 5:00 PM 9:00 AM - 6:00 PM 9:00 AM - 5:00 PM 9:00 AM - 5:00 PM https://www.royacdn.com/unsafe/smart/Site-d4e2aea3-4679-4187-8479-90c618d39a9b/megan_root_heashot.jpg realtor # # # https://www.royacdn.com/unsafe/smart/Site-d4e2aea3-4679-4187-8479-90c618d39a9b/megan_root_heashot.jpg https://www.google.com/maps/place/MilestonePropertiesCA.com/@33.1044426,-117.2678412,15z/data=!4m5!3m4!1s0x0:0x203e6c4135692a61!8m2!3d33.1044426!4d-117.2678412 https://shoutoutsocal.com/meet-megan-root-real-estate-broker/