Property Detail

1006 Pottery

Lake Elsinore CA 92530

$649,988

Status: Active

Property Details

Description

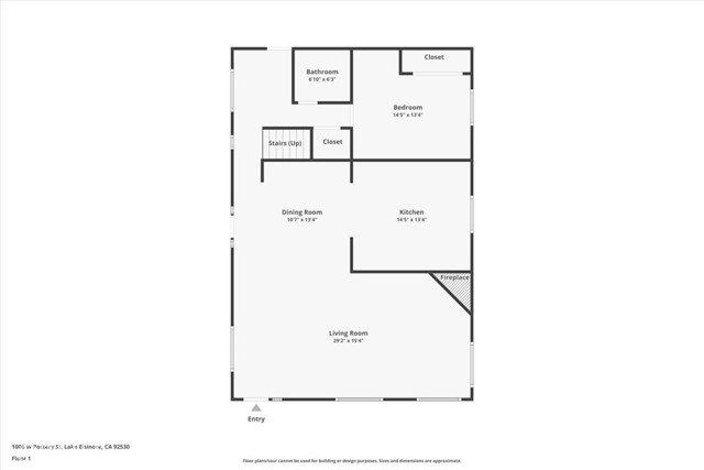
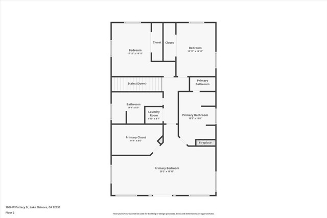
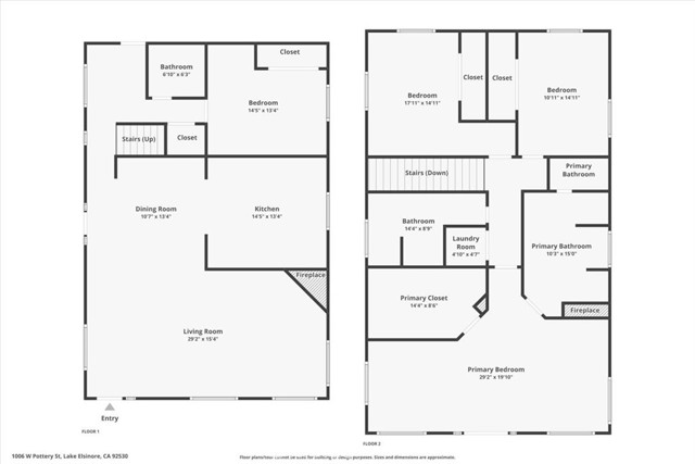
Enjoy the big three: PAID-OFF solar, low property taxes, and NO HOA—a rare combination that keeps ownership costs down and value high. This spacious 4-bedroom, 3-bath home offers approximately 3,000 sq ft on a desirable lot in the heart of Lake Elsinore. Inside, the layout is both functional and flexible with a downstairs bedroom and full bath, ideal for guests, a home office, or multi-gen living. The kitchen is tastefully updated with stainless steel appliances and upgraded countertops, flowing into the main living areas for effortless entertaining. Upstairs, the primary suite opens to a private balcony with lake views, perfect for morning coffee or sunset relaxation. Plus, the home features two A/C units—one dedicated to each floor—so you can cool only what you need and help reduce energy consumption, especially when paired with the solar setup. Conveniently located near downtown, shopping, dining, and lake activities—this home checks the boxes for space, comfort, and long-term savings.

Map Location

Listing provided courtesy of Ezio Sanchez of eXp Realty of Southern California. Last updated 2026-02-28 09:19:56.000000. Listing information © 2025 CRMLS.

Megan Root

Megan Root

CA DRE# 01351843
Inquire Now
Roya1234 Real estate 9:00 AM - 5:00 PM 9:00 AM - 5:00 PM 9:00 AM - 5:00 PM 9:00 AM - 5:00 PM 9:00 AM - 6:00 PM 9:00 AM - 5:00 PM 9:00 AM - 5:00 PM https://www.royacdn.com/unsafe/smart/Site-d4e2aea3-4679-4187-8479-90c618d39a9b/megan_root_heashot.jpg realtor # # # https://www.royacdn.com/unsafe/smart/Site-d4e2aea3-4679-4187-8479-90c618d39a9b/megan_root_heashot.jpg https://www.google.com/maps/place/MilestonePropertiesCA.com/@33.1044426,-117.2678412,15z/data=!4m5!3m4!1s0x0:0x203e6c4135692a61!8m2!3d33.1044426!4d-117.2678412 https://shoutoutsocal.com/meet-megan-root-real-estate-broker/