Property Detail

3754 Tennyson

San Diego CA 92107

$1,749,000

Status: Active

Property Details

Description

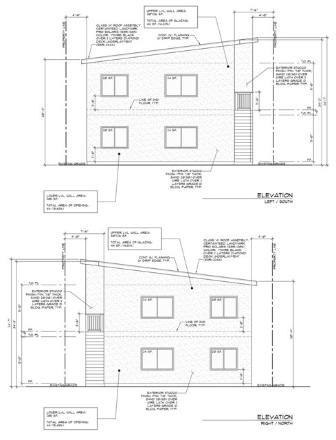
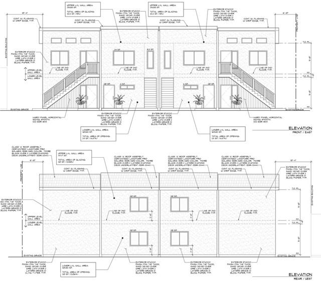
This is a de-risked development play for a developer looking to significantly shorten the City of San Diego entitlement timeline. The property is zoned RM-3-7 and is being sold with plans for 8 additional units already in the final stages of the approval process. The project is expected to be fully stamped and ready for permit issuance by end of March, allowing a buyer to move into the construction phase almost immediately upon closing. While you prepare to pull permits and mobilize, the site provides immediate carry income to offset holding expenses. This turnkey revenue stream ensures the asset is working for you from day one. Providing a clean slate for construction or immediate market-rate leasing. The project is designed to maximize the density of this Tier 1 location using the ADU program. Upon completion of the 8 additional one-bedroom units, the expected gross monthly revenue is 23,000 dollars. This represents a substantial equity play in a high-demand coastal submarket. Whether you are looking for a high-yield hold or a future condo conversion, the proximity to Liberty Station, Sunset Cliffs, and top-tier schools ensures long-term exit liquidity. All project documentation is ready for immediate review. We have a full data room available including architectural designs, engineering, site plans, and a comprehensive proforma. Skip the typical 12-24 month planning lag and acquire a project where the heavy lifting of design and city approval are already behind you.

Map Location

Listing provided courtesy of Jonathan Minerick of Homecoin.com. Last updated 2026-03-09 08:19:10.000000. Listing information © 2025 CRMLS.

Megan Root

Megan Root

CA DRE# 01351843
Inquire Now
Roya1234 Real estate 9:00 AM - 5:00 PM 9:00 AM - 5:00 PM 9:00 AM - 5:00 PM 9:00 AM - 5:00 PM 9:00 AM - 6:00 PM 9:00 AM - 5:00 PM 9:00 AM - 5:00 PM https://www.royacdn.com/unsafe/smart/Site-d4e2aea3-4679-4187-8479-90c618d39a9b/megan_root_heashot.jpg realtor # # # https://www.royacdn.com/unsafe/smart/Site-d4e2aea3-4679-4187-8479-90c618d39a9b/megan_root_heashot.jpg https://www.google.com/maps/place/MilestonePropertiesCA.com/@33.1044426,-117.2678412,15z/data=!4m5!3m4!1s0x0:0x203e6c4135692a61!8m2!3d33.1044426!4d-117.2678412 https://shoutoutsocal.com/meet-megan-root-real-estate-broker/