Property Detail

539 Pasadena

Azusa CA 91702

$998,000

Status: Active

Property Details

Description

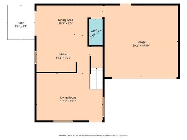
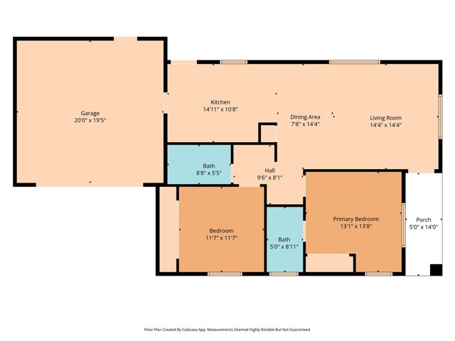
This well-maintained duplex at 539 N Pasadena Ave sits directly across the street from Slauson Park, giving you open green space, walking paths, and a neighborhood feel right outside your door. There is a total of 5 bedrooms and 4.5 baths. The property features two separate homes divided by their own garages, offering privacy and flexibility—perfect for multi-generational living, rental income, or living in one unit while renting the other. Unit #1 is bright and comfortable with high ceilings, a ceiling fan, and central AC & heat. The kitchen comes equipped with a range/oven, refrigerator, and dishwasher, and the home includes thoughtful storage like a coat closet and bedroom closets. Both bathrooms feature shower/tub combos, including one in the primary bedroom. A small side yard offers a private outdoor space, and the 2-car garage includes washer and dryer hookups. Unit #2 has a spacious layout with large bedrooms, central AC & heat, and a kitchen with a 4-burner gas range and oven plus a pantry for extra storage. The floor plan includes a convenient half bath downstairs and a Jack-and-Jill bathroom upstairs, creating a functional setup for shared living. The unit also includes washer and dryer hookups in the garage. The property offers a long driveway plus parking in front of the two-car garages, making parking easy for residents and guests. Located between 5th and 6th Street, this home is close to parks, schools, shopping, and everyday conveniences while still feeling tucked into a peaceful neighborhood. Whether you're an investor looking for strong rental potential or a buyer hoping to live in one unit and rent the other, this duplex offers flexibility, comfort, and a location that’s hard to beat.

Map Location

Listing provided courtesy of Tiffany Wopschall of Hythe Realty, Inc. Last updated 2026-03-09 08:19:11.000000. Listing information © 2025 CRMLS.

Megan Root

Megan Root

CA DRE# 01351843
Inquire Now
Roya1234 Real estate 9:00 AM - 5:00 PM 9:00 AM - 5:00 PM 9:00 AM - 5:00 PM 9:00 AM - 5:00 PM 9:00 AM - 6:00 PM 9:00 AM - 5:00 PM 9:00 AM - 5:00 PM https://www.royacdn.com/unsafe/smart/Site-d4e2aea3-4679-4187-8479-90c618d39a9b/megan_root_heashot.jpg realtor # # # https://www.royacdn.com/unsafe/smart/Site-d4e2aea3-4679-4187-8479-90c618d39a9b/megan_root_heashot.jpg https://www.google.com/maps/place/MilestonePropertiesCA.com/@33.1044426,-117.2678412,15z/data=!4m5!3m4!1s0x0:0x203e6c4135692a61!8m2!3d33.1044426!4d-117.2678412 https://shoutoutsocal.com/meet-megan-root-real-estate-broker/