Property Detail

11356 Thurston

Los Angeles CA 90049

$2,199,000

Status: Active

Property Details

Description

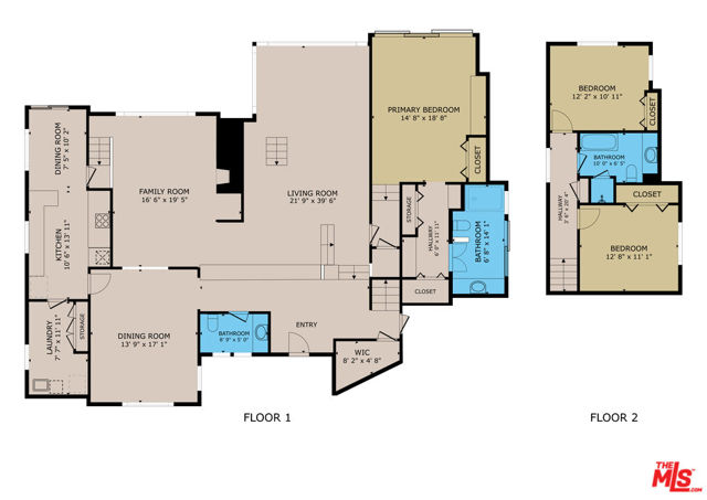
Incredible Lower Bel-Air opportunity built from original plans by legendary architect Gerard Colcord. Whether thoughtfully renovating, modernizing, or reimagining, this tri-level residence presents a rare chance to restore and elevate a special architectural home. Built in 1961, the property offers 3 bedrooms, 2.5 bathrooms, and approximately 2,805 SQFT of living space set on an 8,401 SQFT lot. Rich with character and nuance, the home showcases intricate design details that reflect Colcord's timeless style. Unique in both layout and atmosphere, the residence offers a cool, distinctive vibe rarely found in homes of this era, with a multi-level floor plan that creates separation, volume, and visual interest throughout. Featuring rich slate tile and hardwood flooring, the home showcases stunning cathedral ceilings with exposed wood beams and fireplaces in both the living room and the family room. Each space is enhanced by sliding glass doors that open to a relaxing rear yard and patio, perfect for indoor-outdoor living and entertaining. The cook's kitchen is highlighted by built-in appliances, a sun-filled breakfast nook, and convenient access to a charming dining room perfect for gatherings. The primary suite offers his and hers closets, a dressing area, and a private en-suite bathroom featuring a quartz-topped vanity, updated shower, and tranquil atrium. Additional highlights include a direct-access oversized two-car garage, central air and heat, and two separate bonus basement rooms - perfect for a home gym, storage, workshop, or other flexible spaces. Conveniently located near Brentwood Village, Malibu, Skirball Cultural Center, The Getty, UCLA, Sunset Strip, and Beverly Hills' Golden Triangle, with easy access to freeways and everything the Westside has to offer. With great bones and undeniable personality, this is a true Bel-Air original ready for its next chapter.

Map Location

Listing provided courtesy of David Rothblum of RE/MAX One. Last updated 2026-03-12 08:23:24.000000. Listing information © 2025 CRMLS.

Megan Root

Megan Root

CA DRE# 01351843
Inquire Now
Roya1234 Real estate 9:00 AM - 5:00 PM 9:00 AM - 5:00 PM 9:00 AM - 5:00 PM 9:00 AM - 5:00 PM 9:00 AM - 6:00 PM 9:00 AM - 5:00 PM 9:00 AM - 5:00 PM https://www.royacdn.com/unsafe/smart/Site-d4e2aea3-4679-4187-8479-90c618d39a9b/megan_root_heashot.jpg realtor # # # https://www.royacdn.com/unsafe/smart/Site-d4e2aea3-4679-4187-8479-90c618d39a9b/megan_root_heashot.jpg https://www.google.com/maps/place/MilestonePropertiesCA.com/@33.1044426,-117.2678412,15z/data=!4m5!3m4!1s0x0:0x203e6c4135692a61!8m2!3d33.1044426!4d-117.2678412 https://shoutoutsocal.com/meet-megan-root-real-estate-broker/