Property Detail

5360 Treasure Hill

Oroville CA 95966

$599,999

Status: Active

Property Details

Description

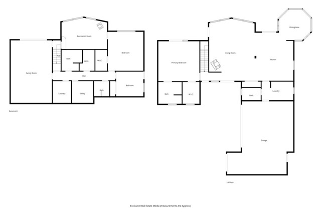
Enjoy stunning lake views in this rare gem—an exceptional ABC Cedar CUSTOM built home offering character and craftsmanship. Showcasing exceptional detail, this property features custom woodwork throughout and a striking stone fireplace that anchors the living space with warmth and charm. Thoughtfully paired with modern comforts, the home offers fully owned solar, newer HVAC, roof, windows, and updated appliances. Over the years, the seller has carefully enhanced the home with updated flooring, fresh paint, and more—always preserving its original charm and timeless appeal. The main level welcomes you with an immediate sense of space and light. As you enter, you're greeted by a spacious living room with breathtaking lake views that continue seamlessly through the kitchen, dining area, and primary suite. The kitchen has been tastefully updated with newer cabinetry, countertops, and upgraded appliances, offering both style and functionality. A custom laundry room adds convenience with a full wall of pantry storage and additional counter space. The primary suite is beautifully updated, featuring a step-in shower, double vanity, and a generous walk-in closet. Downstairs, the home lives like a second residence—complete with additional bedrooms, a full bathroom, living room, second laundry area, and an expansive media room featuring a kitchenette and projection theater with big screen. This setup is ideal for multi-generational living or hosting guests with ease. Step outside to an expansive back deck designed to take full advantage of the stunning lake views and sunshine—perfect for relaxing or entertaining. In addition, the home offers abundant storage throughout, complete with a workshop and a spacious three-car garage—perfect for hobbies, projects, or extra space. This is truly a must-see home that offers space, flexibility, and unmatched character plus upgrades such as a complete whole house vacuum system serving both levels, built in cabinetry/workbench in garage, home generator and so much more. Come experience the beauty, comfort, and lifestyle this home has to offer—just minutes from beautiful Lake Oroville, where endless outdoor adventures and unforgettable moments await.

Map Location

Listing provided courtesy of Kandice Rickson of Re/Max Home and Investment. Last updated 2026-04-17 08:23:31.000000. Listing information © 2025 CRMLS.

Megan Root

Megan Root

CA DRE# 01351843
Inquire Now
Roya1234 Real estate 9:00 AM - 5:00 PM 9:00 AM - 5:00 PM 9:00 AM - 5:00 PM 9:00 AM - 5:00 PM 9:00 AM - 6:00 PM 9:00 AM - 5:00 PM 9:00 AM - 5:00 PM https://www.royacdn.com/unsafe/smart/Site-d4e2aea3-4679-4187-8479-90c618d39a9b/megan_root_heashot.jpg realtor # # # https://www.royacdn.com/unsafe/smart/Site-d4e2aea3-4679-4187-8479-90c618d39a9b/megan_root_heashot.jpg https://www.google.com/maps/place/MilestonePropertiesCA.com/@33.1044426,-117.2678412,15z/data=!4m5!3m4!1s0x0:0x203e6c4135692a61!8m2!3d33.1044426!4d-117.2678412 https://shoutoutsocal.com/meet-megan-root-real-estate-broker/