Property Detail

1129 Mazzini

Paso Robles CA 93446

$982,990

Status: Active

Property Details

Description

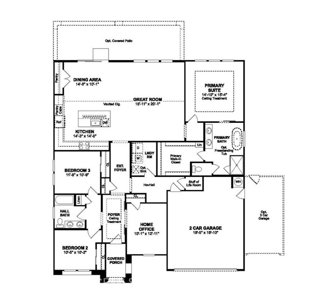
Elevate your lifestyle at Mirabella, Paso Robles’ sought-after master-planned community where modern design meets every day ease. Enjoy resort-style amenities including a pool, pickleball courts, and scenic walking trails, all conveniently located near major highways and Paso Robles Municipal Airport. The Amadora plan offers refined single-story living with 3 spacious bedrooms, 2 baths, and a versatile home office ideal for work or relaxation. The chef-inspired kitchen is a standout, featuring sleek Grey cabinetry, Calacatta Monaco quartz countertops, a generous island, and GE stainless-steel appliance, perfect for both entertaining and daily living. The open layout flows effortlessly into the great room and dining area, creating a bright and welcoming atmosphere. Unwind in the private primary suite, complete with dual vanities, a walk-in shower, a freestanding soaking tub, and a large walk-in closet. Thoughtfully designed with style, comfort, and functionality in mind, this home offers the perfect blend of luxury and livability in the heart of Paso Robles. **Price subject to change.

Map Location

Listing provided courtesy of Michelle Nguyen of K. Hovnanian Companies of CA. Last updated 2026-04-24 08:16:24.000000. Listing information © 2025 CRMLS.

Megan Root

Megan Root

CA DRE# 01351843
Inquire Now
Roya1234 Real estate 9:00 AM - 5:00 PM 9:00 AM - 5:00 PM 9:00 AM - 5:00 PM 9:00 AM - 5:00 PM 9:00 AM - 6:00 PM 9:00 AM - 5:00 PM 9:00 AM - 5:00 PM https://www.royacdn.com/unsafe/smart/Site-d4e2aea3-4679-4187-8479-90c618d39a9b/megan_root_heashot.jpg realtor # # # https://www.royacdn.com/unsafe/smart/Site-d4e2aea3-4679-4187-8479-90c618d39a9b/megan_root_heashot.jpg https://www.google.com/maps/place/MilestonePropertiesCA.com/@33.1044426,-117.2678412,15z/data=!4m5!3m4!1s0x0:0x203e6c4135692a61!8m2!3d33.1044426!4d-117.2678412 https://shoutoutsocal.com/meet-megan-root-real-estate-broker/